€
EUR
A propos de nous
Biens Immobiliers
Contact
Voulez vendre
Mais
A propos de nous
Biens Immobiliers
Contact
Voulez vendre
0
0
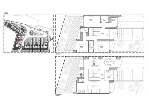
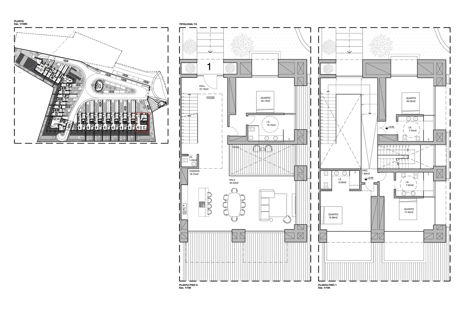
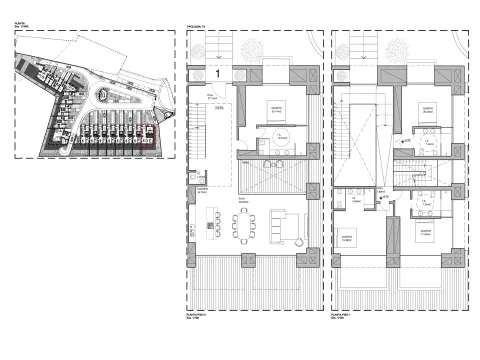
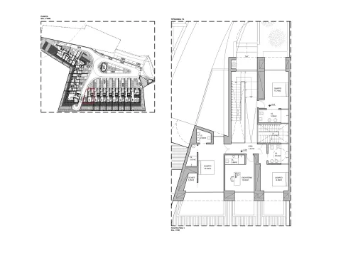
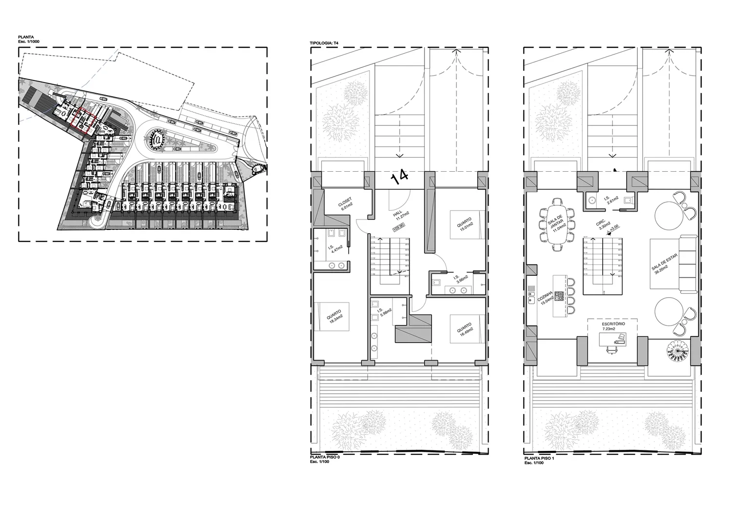
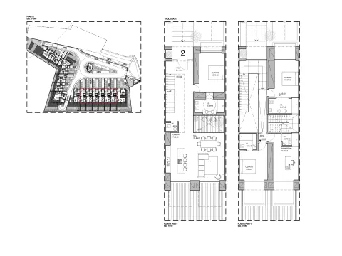
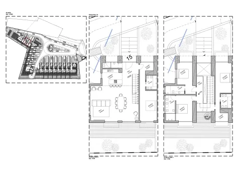
Terrain pour la construction de villas dans une copropriété de luxe
Faro, Loulé
Retour
\
Terrain pour la construction de villas dans une copropriété de luxe - Faro, Loulé
Partager Immeuble
Facebook
X
Pinterest
WhatsApp
Copiar link
Link copiado
Imprimer la fiche
Envoyer la propriété à un ami
Insérer un nom
Insérer un email
Entrez une adresse email valide
Insérer un nom
Insérer un email
Entrez une adresse email valide
J´ai lu et accepte les termes et conditions énoncés.
Savoir plus »
Pour terminer cette opération, vous devez lire et accepter nos conditions.
Champs obligatoires *
Envoyer
Photos
Vidéos
Seguir imóvel
Seguir imóvel
Receba um alerta quando existir uma Baixa de Preço
Nom
Insira o seu Nome
E-mail
Entrez votre email
Entrez une adresse email valide
Li e aceito a
Politique de confidentialité
Pour terminer cette opération, vous devez lire et accepter nos conditions.
Entrez le code de l'image
Code
Envoyer
Terrain pour la construction de villas dans une copropriété de luxe
3 500 000 €
Ref:
AP004/2022
9770 m²
9770 m²
9770 m²
9770 m²
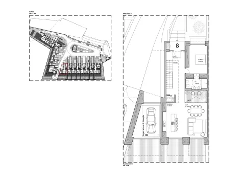
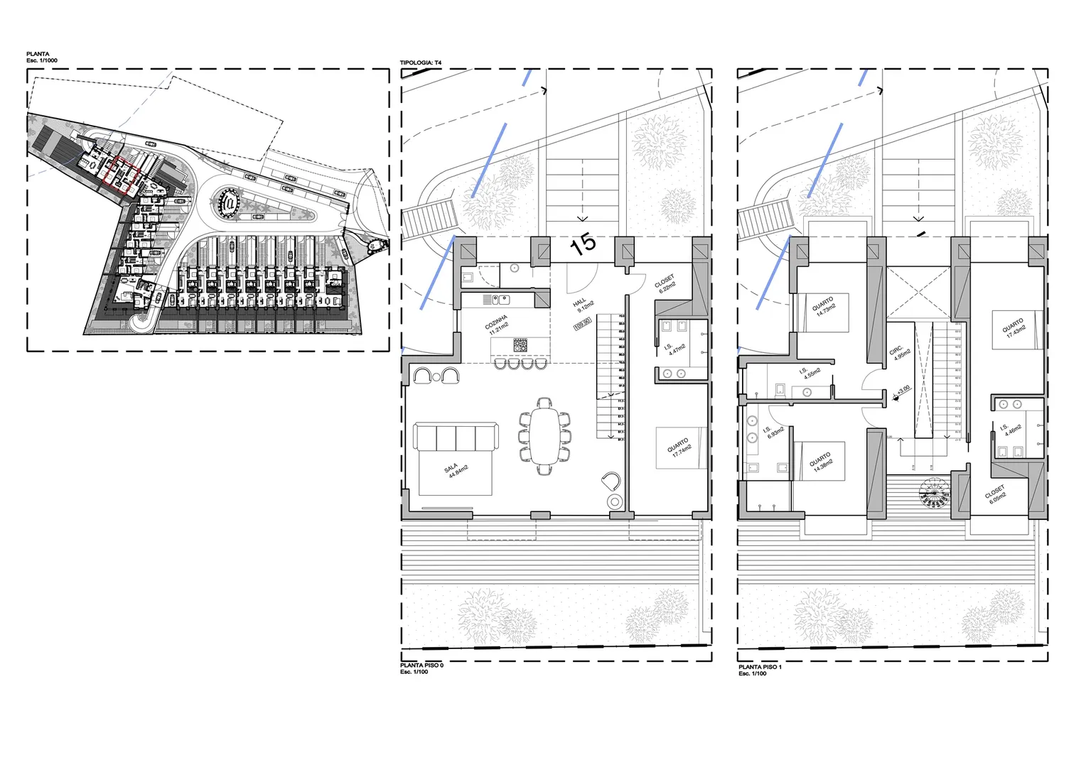
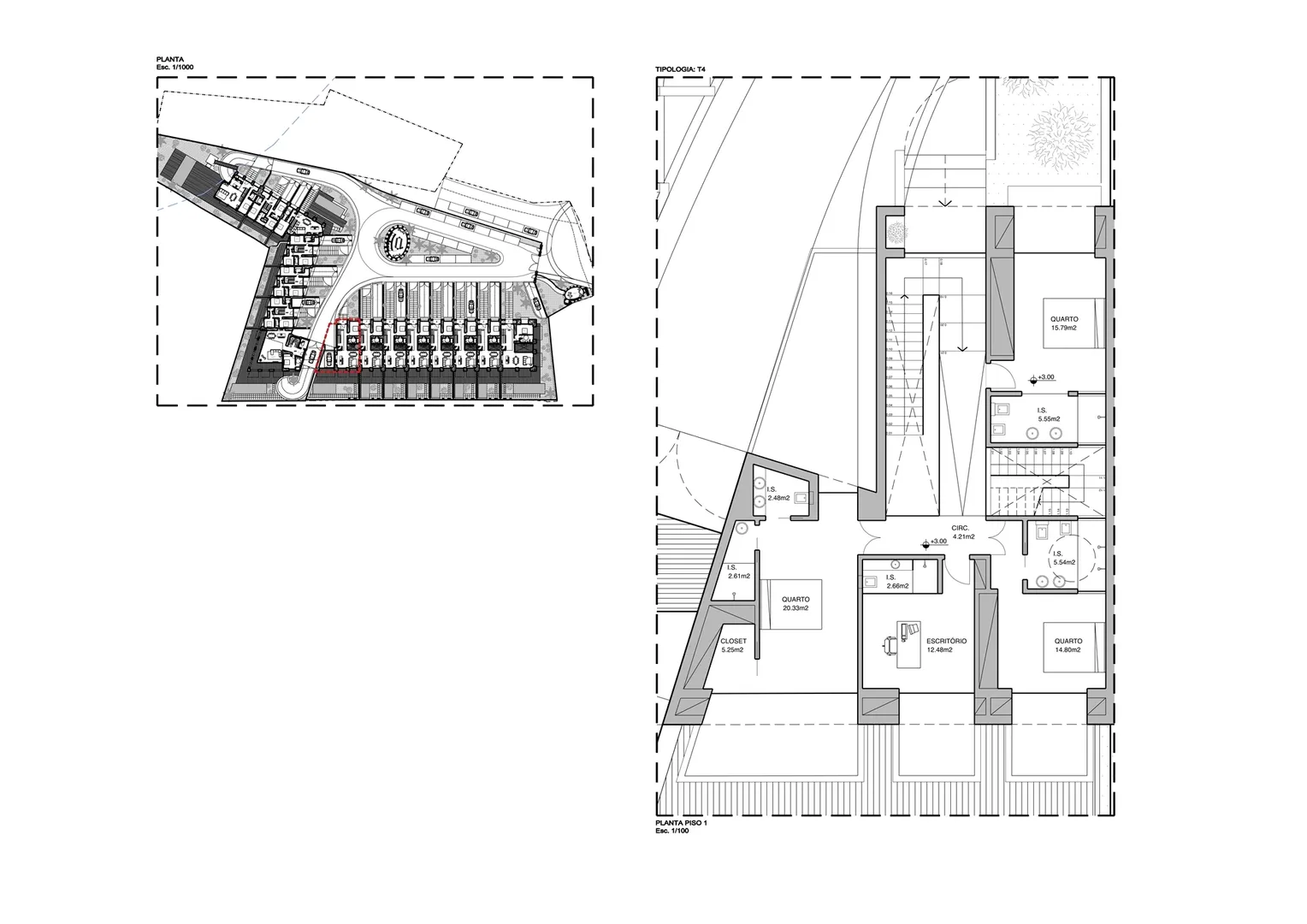
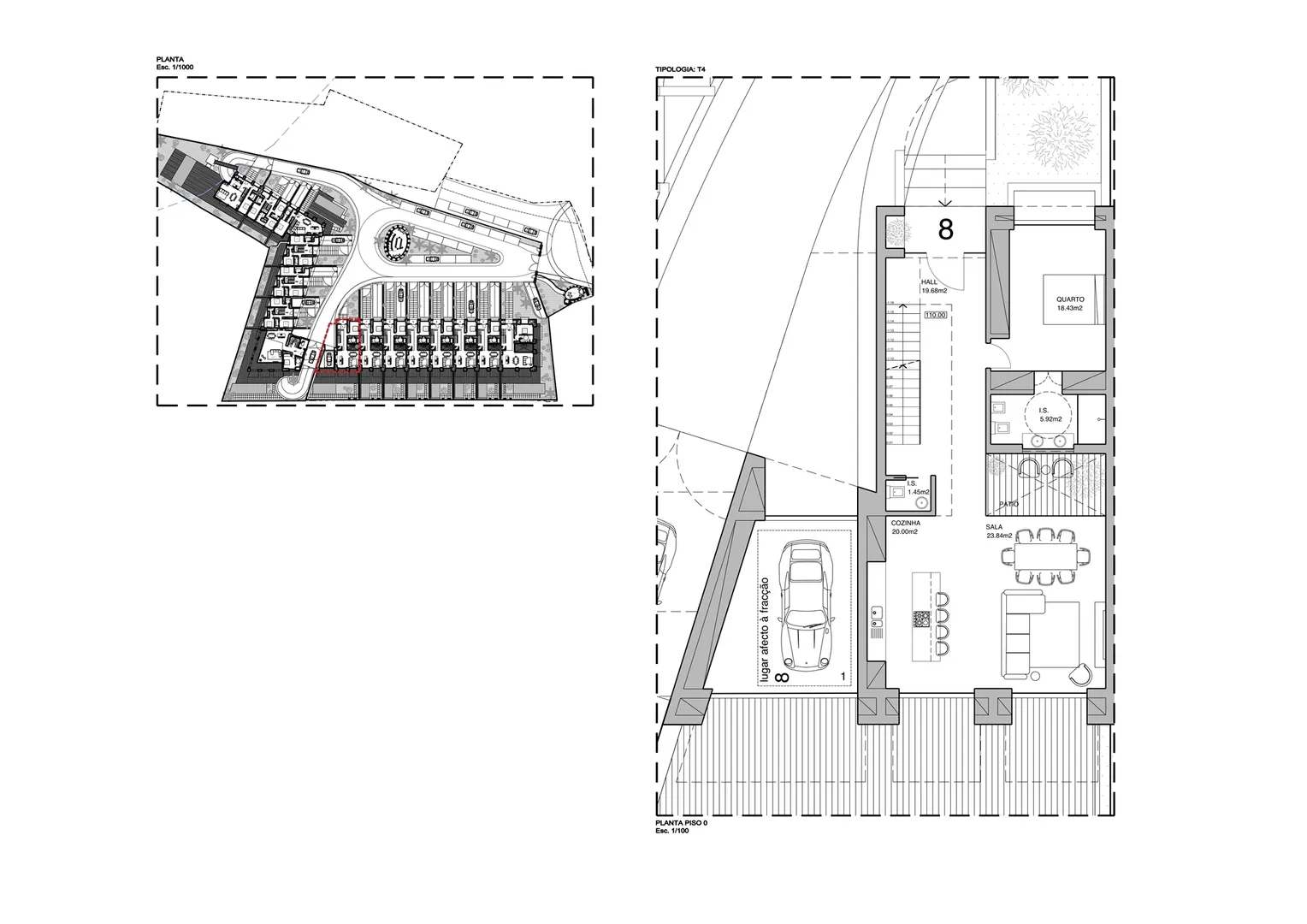
Terre d’un caractère véritablement exceptionnel, située dans un environnement rural où la tranquillité, la qualité de vie et le contact direct avec la nature se conjuguent pour créer un cadre d’une rare distinction.
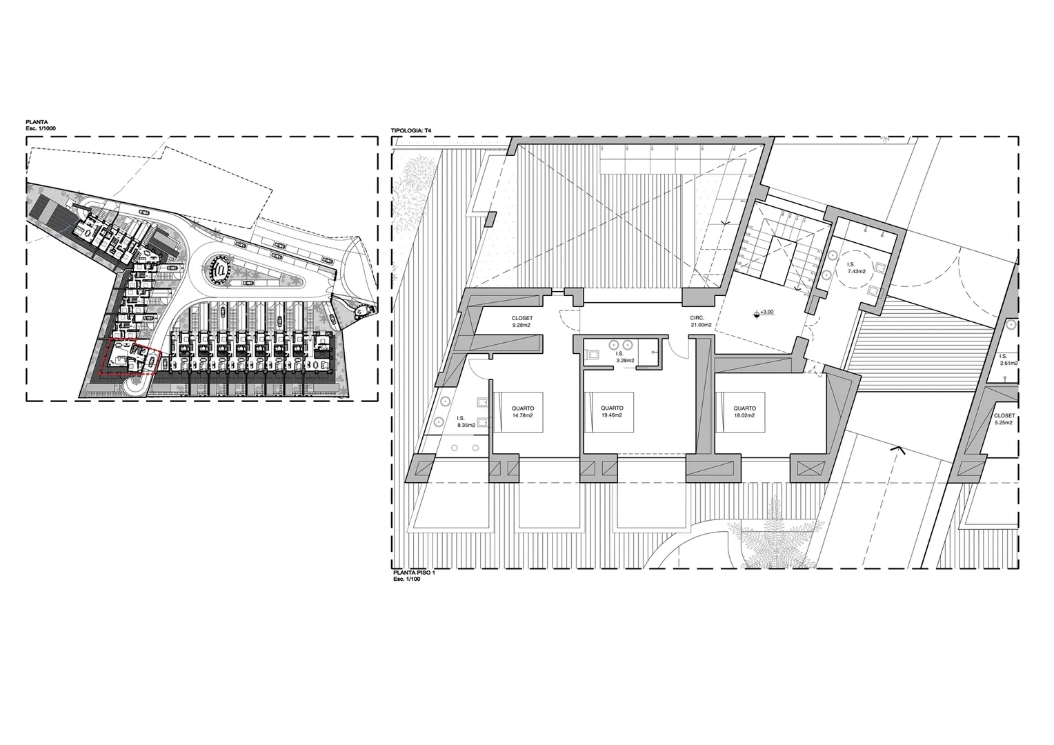
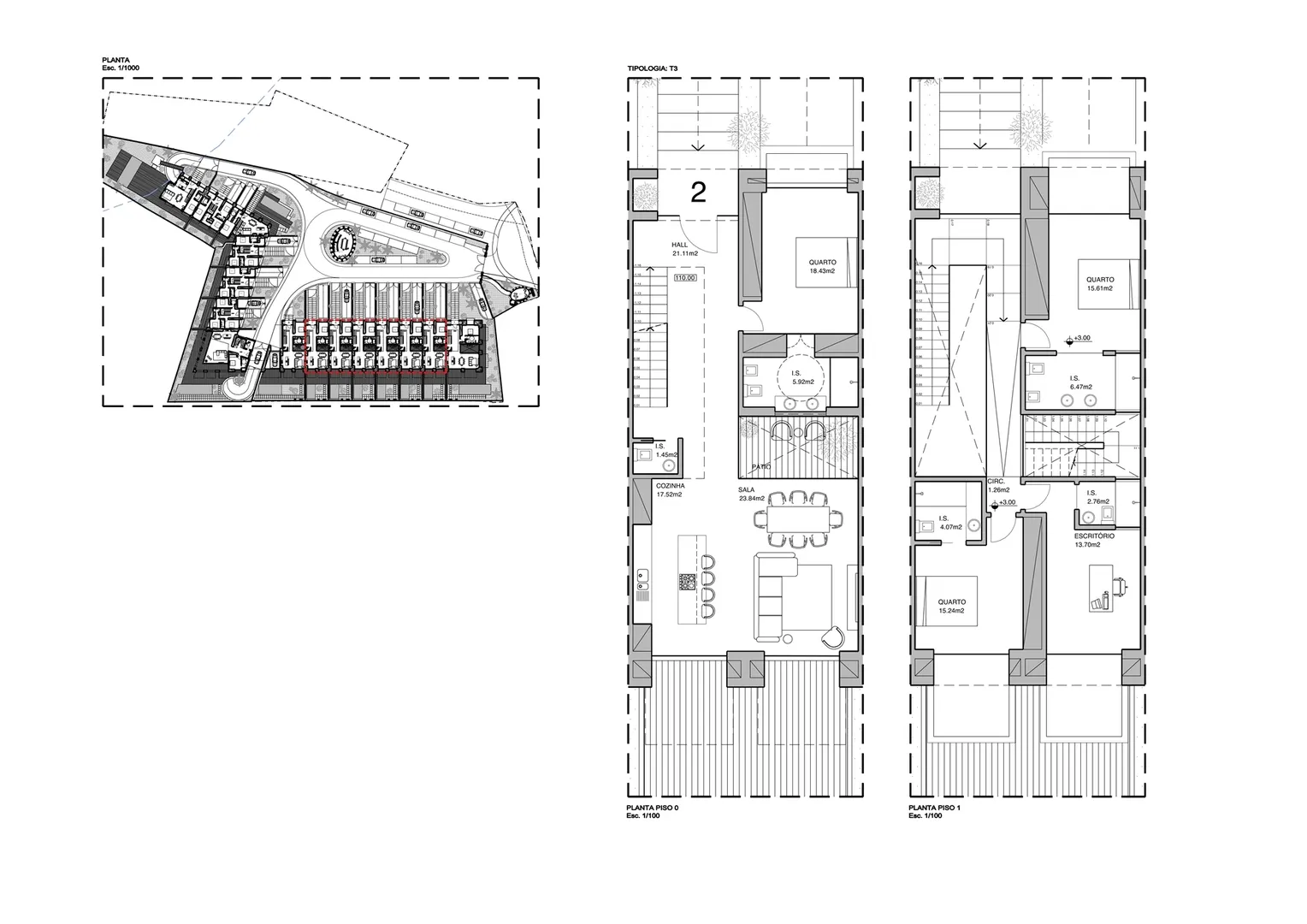
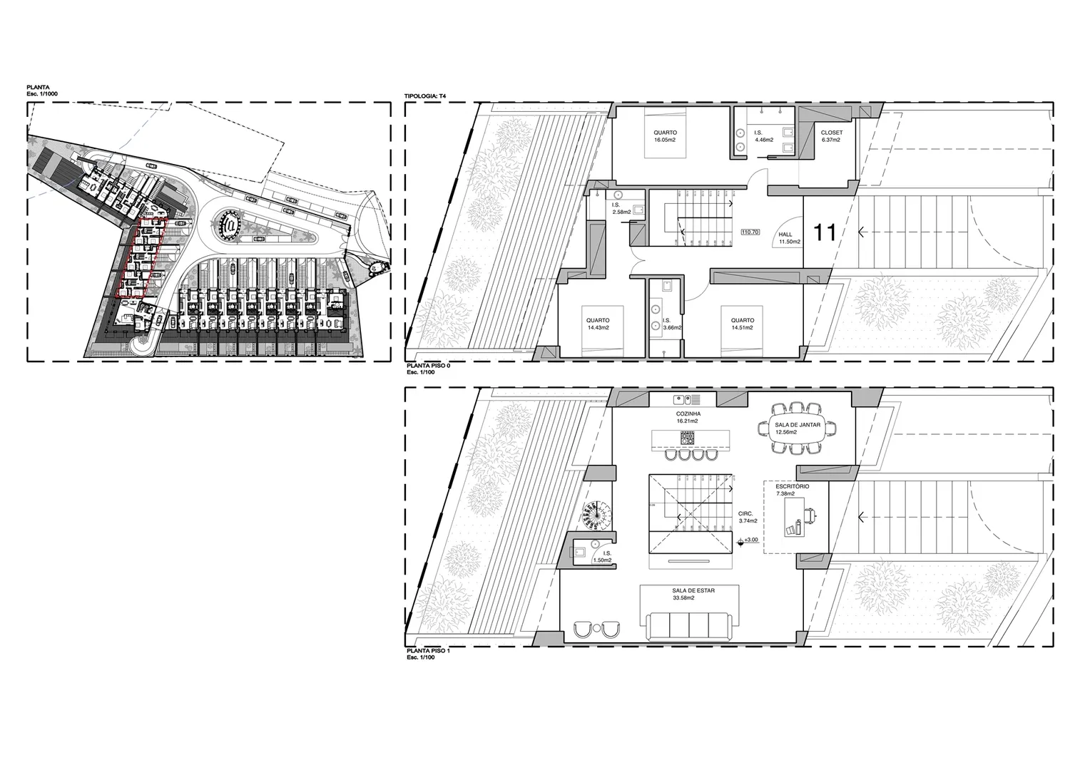
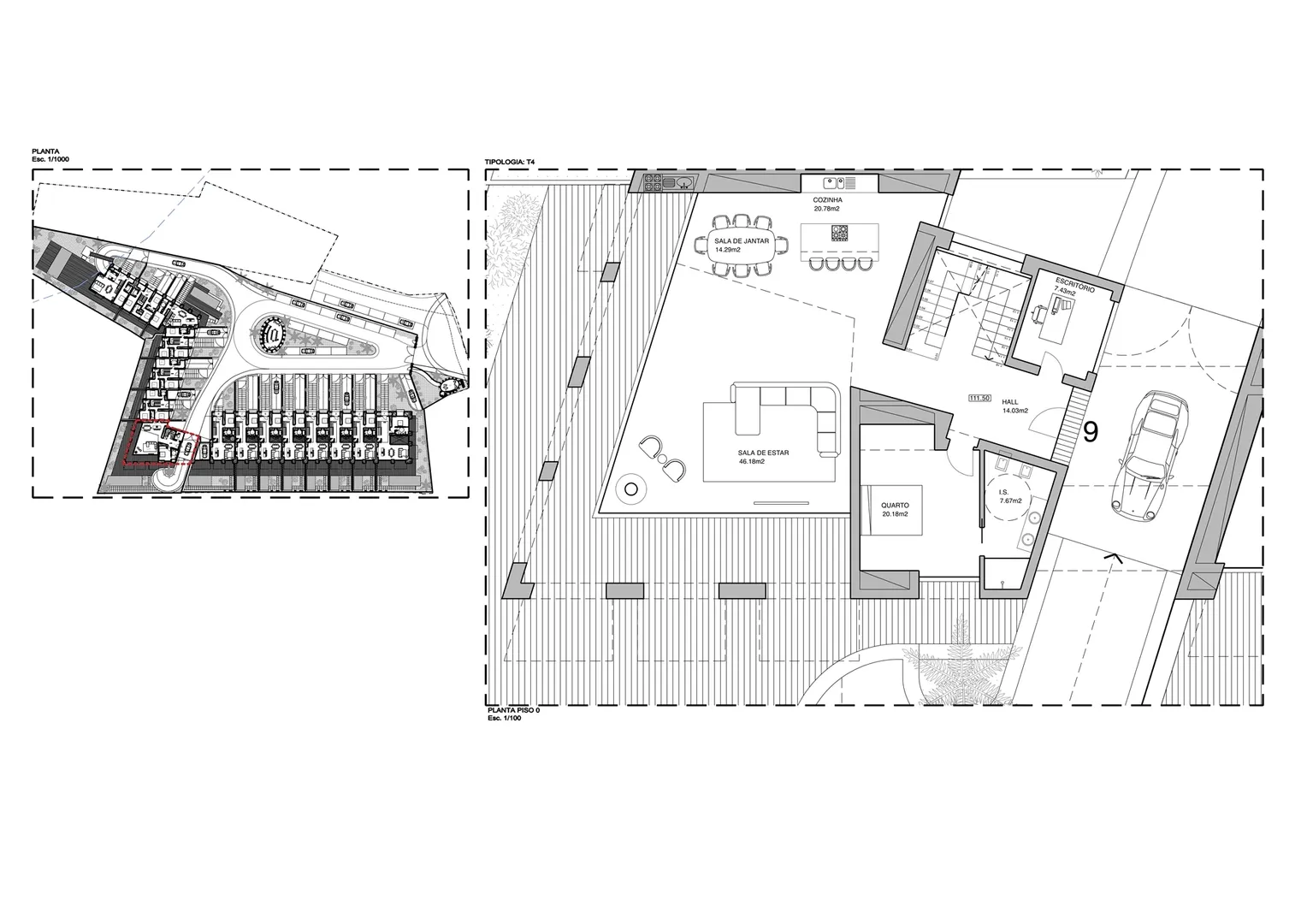
Situé à quelques minutes de Vilamoura, dans une zone appréciée et reconnue pour son environnement paisible, ce terrain présente la faisabilité de construction et un projet en phase finale d’approbation pour une communauté fermée de luxe, conçue pour répondre aux attentes d’un marché exigeant qui privilégie la confidentialité, le confort et l’exclusivité. Le projet prévu a été conçu pour intégrer quinze villas d’architecture contemporaine, soigneusement planifiées pour offrir des environnements spacieux et lumineux, des sous-sols polyvalents, des piscines privées renforçant l’impression de retraite et des toits avec jacuzzi orientés vers le paysage naturel, offrant des moments de sérénité et de contemplation. Les espaces communs ont été aménagés dans le but d’améliorer la vie quotidienne des résidents, notamment une salle d’administration pour assurer une gestion efficace et discrète du condominium, une aire de jeux harmonieusement encadrée dans le paysage et des jardins favorisant le bien-être, la coexistence sereine et la connexion permanente à l’environnement naturel qui caractérise toute la zone environnante.
La situation stratégique représente l’un des grands atouts de ce projet, permettant à l’environnement paisible de la campagne de coexister avec la proximité immédiate des infrastructures les plus prestigieuses de la région. En seulement cinq minutes, il est possible d’accéder au centre de Vilamoura, à la marina, aux excellents restaurants, aux services de référence et à certains des parcours de golf les plus primés d’Europe, ainsi qu’aux plages emblématiques de l’Algarve, réputées pour leur beauté unique.
Ce terrain avec un projet en phase d’approbation constitue une opportunité rare dans un marché très concurrentiel, combinant potentiel d’appréciation, exclusivité et un cadre naturel difficile à égaler. C’est une option solide pour les investisseurs à la recherche d’un produit véritablement différencié, capable de répondre aux exigences du segment premium et d’offrir aux futurs résidents un mode de vie favorisant le calme, le confort et l’excellence.
Pour plus d’informations ou pour une présentation détaillée, nous sommes entièrement à votre disposition, certains qu’il s’agit d’un investissement aux caractéristiques uniques et très prometteuses au cœur de l’Algarve.
Type de propriété
Terrain à bâtir
Typologie
0 Chambres
Objectif
Vente
Etat
En Projet
Prix
3 500 000 €
Année de construction
N/D
Pays
Portugal
Département
Faro
Ville
Loulé
Lieu
Boliqueime
Zone
N/D
Intéressé par cette propriété?
Date
Hora
Nom
Insérer un nom
E-mail
Insérer un email
Entrez une adresse email valide
Contact
Entrez votre contact téléphonique
Message
Je demande plus d'informations, sans aucun engagement, à propos de la propriété AP004/2022
J´ai lu et accepte les termes et conditions énoncés.
Politique de confidentialité
Pour terminer cette opération, vous devez lire et accepter nos conditions.
Code
Entrez le code affiché dans l'image
Envoyer
Simulador de Crédito
Simulador de IMT
Valor do imóvel*
Montante de Empréstimo*
A sua idade*
Prazo empréstimo *
Prestação Mensal
0.00
€
O valor da prestação apresentada não inclui Seguro de Vida e Seguro Lar.
Indexante
0.000
%
TAEG
0.000
%
Spread
0.000
%
Prazo
0
anos
TAN
0.000
%
Simular
Inserir aqui o disclaimer. Isto é apenas uma simulação. Esta simulação de crédito não tem fins lucrativos.
Local do imóvel*
Selecione
Portugal Continental
Regiões Autónomas
Finalidade*
Selecione
Habitação Própria Permanente
Habitação Secundária ou Arrendamento
Prédios Rústicos
Outros
Valor do imóvel*
Valores complementares*
IMT
0.00
€
Imposto de Selo (0,8%)
0.00
€
Valores complementares
0.00
€
Total a pagar
0.00
€
Mais informações
Simular
Inserir aqui o disclaimer. Isto é apenas uma simulação. Esta simulação de crédito não tem fins lucrativos.
Dados de Intermediação de Crédito - (Intermediário de Crédito nº )
Saiba mais sobre a sua simulação
Nom
Campo obrigatório
E-mail
Campo obrigatório
Insira um e-mail válido
Contact
Campo obrigatório
Commentaires
Isto é apenas uma simulação. Esta simulação de crédito não tem fins lucrativos.
Li e aceito a
Politique de confidentialité
Pour terminer cette opération, vous devez lire et accepter nos conditions.
Code
Entrez le code affiché dans l'image
Enviar
Caractéristiques générales
Général
Pièces
Pièces
Lieu
Étage
Murs
Plafonds
Commentaires
Environnement
Commodités
Domotique
Energies Renouvelables
Emplacement de la Propriété
Estamos disponíveis para o ajudar
Pretendo ser contactado
Date
Hora
Nom
Insérer un nom
E-mail
Insérer un email
Entrez une adresse email valide
Contact
Insira o seu Contacto
Message
Li e aceito a
Politique de confidentialité
Pour terminer cette opération, vous devez lire et accepter nos conditions.
Code
Entrez le code affiché dans l'image
Envoyer
O que é a pesquisa responsável
Esta pesquisa permite obter resultados mais ajustados à sua disponibilidade financeira.